Appartement T3 à Montijo e Afonsoeiro de 204 m²
Offrez-vous un cadre de vie exceptionnel au cœur de la…
€767.600
Campo de Ourique, Lisbon, Portugal
Achat
€230.000 €
Découvrez une opportunité commerciale rare à Campo de Ourique, l’un des quartiers les plus vivants, résidentiels et recherchés de Lisbonne.
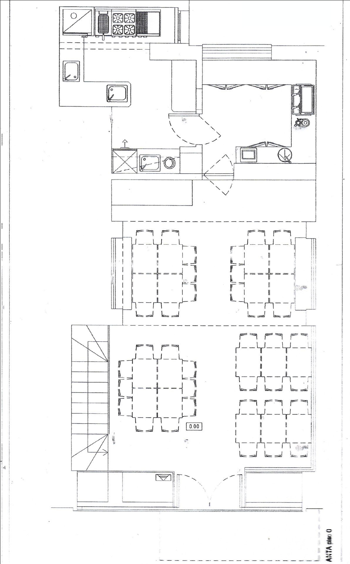
Ce fonds de commerce de restaurant de 168 m², idéalement situé entre le marché de Campo de Ourique et le Jardim da Parada, bénéficie d’un emplacement premium avec forte affluence locale.
Actuellement exploité en restaurant italien premium, l’établissement bénéficie d’une clientèle fidèle, locale et internationale. Grâce à son emplacement exceptionnel au cœur de Campo de Ourique, l’un des quartiers gastronomiques de Lisbonne, ce commerce profite d’un flux continu de résidents, familles, professionnels et touristes.
Le local, d’une superficie totale de 168 m², est parfaitement structuré pour optimiser l’exploitation commerciale.
Ce local commercial est prêt à l’emploi, idéal pour une reprise rapide ou pour développer un nouveau concept culinaire dans un quartier au fort pouvoir d’achat.
Campo de Ourique est connu pour son atmosphère conviviale, ses petites rues commerçantes et son sens aigu du vivre-ensemble. C’est l’un des quartiers les plus prisés de Lisbonne pour l’implantation d’un restaurant ou d’un commerce de proximité.
Parmi les points d’intérêt du quartier :
Un emplacement où la demande ne faiblit jamais.
Même si vous n’êtes pas au Portugal, je vous accompagne grâce à des outils numériques modernes pour faciliter votre projet : visites vidéo, échanges en direct, documents et inventaires.
Je suis 100 % disponible par téléphone ou par e-mail pour organiser une visite ou répondre à vos questions.
IAD est une agence immobilière digitale reconnue pour son professionnalisme.
Je travaille en partage de commission avec toutes les agences disposant d’un numéro AMI.
En tant que conseiller immobilier indépendant, je vous accompagne dans chaque étape de votre projet commercial, avec flexibilité et un suivi personnalisé.
Disponible en Portugais, Français et Anglais.
Offrez-vous un cadre de vie exceptionnel au cœur de la…
€767.600
Découvrez le raffinement et l’exclusivité au cœur du centre historique…
€870.000
Boutique/Local commercial à Estrela de 116 m²